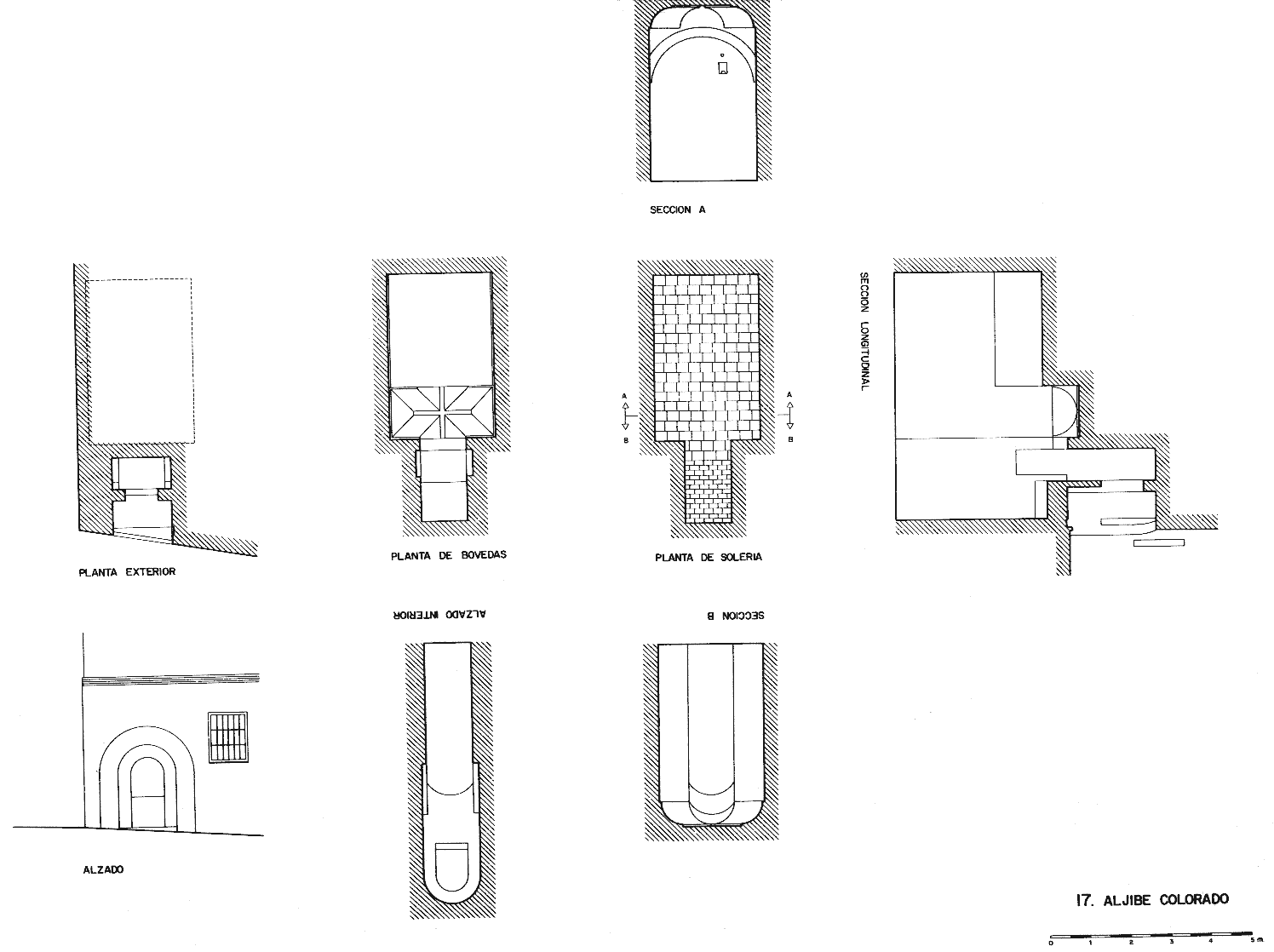
| Geolocalización | Está situado en la calle Larga de San Cristóbal, nº 20, haciendo esquina con un pequeño callejón sin salida. |
| Fecha de construcción | Siglo XIV. |
| Dimensiones | La nave tiene unas dimensiones de 4,09 x 2,60 metros y unas alturas en sus parte primera y segunda de 4,55 y 3,66 metros respectivamente. El tramo de acceso mide 2,03 metros de largo por 1,14 metros de ancho, siendo su altura de 6,42 metros. La capacidad es de 35 metros cúbicos. |
